티스토리 뷰

안전하세요?
오늘은 자율안전확인신고 컨설팅 업무를 수행하면서 고객(제조사 또는 수입자)분들에게 요청하는 서류가 무엇인지?
그리고 전반적인 자율안전확인신고 진행과정과 제출서류는 어떤것 들이 있는지 살펴보도록 하겠습니다.
먼저, 자율안전확인신고 제도 및 관련 포스팅은 아래 URL을 참조해 주시기 바랍니다.
그럼 시작하겠습니다!
| 자율안전확인신고 방법은 어떻게 되나요? |
자율안전확인신고는 서면심사(문서심사)로만 진행되며, 신청인(제조자 또는 수입자)가 아래 6가지 서류를 작성하여 1개의 전자문서 합본하여 신청인 사업자등록증 소재지 관할 안전보건공단에 제출하면 됩니다.
1. 자율안전확인신고서
2. 사업자등록증 사본
3. 법인등기부등본 사본(법인 사업자 해당 시)
4. 위험성평가 결과서(신고하는 대상품)
5. 제품의 설명서(국문)
6. 시험성적서(전기안전시험성적서 및 전자파 적합성 시험 성적서)
- 전자파 적합성 시험성적서는 산업용 로봇은 필수사항이며, 연삭기 또는 연마기, 공작기계, 고정형 목재가공용기계는 수치제어방식(NC, NO)만 제출합니다.
| 자율안전확인신고 컨설팅 의뢰시 신청인이 준비해야 하는 서류는 무엇인가요? |
자율안전확인신고 컨설팅을 의뢰하시면 전문 컨설턴트가 현장점검을 통하여 위험성 평가를 실시하고, 전기안전시험 및 필요시 전자파 적합성시험을 실시합니다.
따라서 위 6가지 서류 중 4번, 6번은 컨설팅 업체에서 작성한다고 보시면 됩니다.
그럼 신청인이 준비해야 하는 서류는 아래 4가지 서류만 준비해주시면 됩니다.
1. 자율안전확인신고서
2. 사업자등록증 사본
3. 법인등기부등본 사본
5. 제품 설명서(국문)
신고서 작성방법은 아래 URL을 참고하여 작성해주시거나, 작성이 어려우면 컨설팅 업체에서 직접 작성이 가능합니다.
신고서 (서명 또는 인) 부분에 도장날인만 하셔서 스캔하여 회신해주시면 됩니다.
세이프어스
새로운 안전의 시작! 세이프어스는 공인시험기관으로 자율안전확인신고 및 위험성평가 등 안전보건에 관한 다양한 서비스를 진행하고 있습니다.
safeus.co.kr
| 제품 설명서는 어떻게 작성해야 하나요? |
여기서, 잠깐!
자율안전확인신고서는 도장날인 하고, 사업자등록증, 법인등기부등본은 사본은 스캔해서 보내면 간단한데, 제품 설명서는 어떻게 작성해야 할까요?
제품의 설명서는 반드시 국문으로 작성해야 하며, 제품 설명서는 자율안전확인신고 대상품마다 작성해야 하는 항목이 모두 다릅니다.
제품 설명서에 작성해야 하는 항목은 자율안전확인신고 대상품별 위험성평가서 내용 중 사용설명서 항목을 보시면 됩니다. 예를들어 가장 많이 자율안전확인신고를 실시하는 컨베이어를 기준으로 설명드려 보겠습니다.
컨베이어 위험성평가 결과서를 살펴보면 22호 항목에 사용설명서 라는 항목이 있습니다.
항목을 살펴보면 컨베이어 제조자는 다음의 각 목이 포함된 사용설명서를 사용자에게 제공해야 한다. 라고 되어 있으며, 가목부터 사목까지 제품설명서에 포함해야하는 사항을 표시하고 있습니다.
따라서, 자율안전확인신고 컨베이어 제품설명서 작성을 위해서는 아래 항목을 포함한 설명서를 작성해야 합니다.

자율안전확인신고 컨설팅을 의뢰하시면, 거의 모든 과정을 전문 컨설턴트가 진행하기는 하지만, 제가 가장 중요하게 생각하는 부분은 바로 이 제품설명서 입니다.
신청인(제조사 또는 수입자)가 제품 설명서를 작성해서 주시면 좋겠지만, 자율안전확인신고 컨설팅을 10년 넘게 진행하면서 경험한 바로는 대부분의 고객분들은 제품 설명서가 없거나, 간단하게 작성된 카달로그와 같은 사양서 정도입니다. 수입품의 경우 영문 또는 중문 설명서만 있는 경우도 많이 있습니다.
컨설팅을 의뢰하는데, 복잡하고 어려운 설명서까지 작성하기 어려운 점이 많기 때문에, 저희는 제품 설명서도 직접 작성해 드립니다.
먼저, 제품 설명서가 어떻게 작성되는지 자율안전확인신고 컨베이어 제품설명서 예시를 한번 보겠습니다.
저희가 위 샘플과 같이 제품 설명서를 작성하기 위해서 반드시 필요한 서류는 다음과 같습니다.
1. 제품 설명서에 반드시 포함되어야 하는 자율안전확인표시(KCs명판)에 기재사항
- 제품명 : 컨베이어 이름을 작성해주시면 됩니다.
- 형식명 : 형식명을 작성해주시면 됩니다.
※ 형식번호 작성방법은 아래 URL을 참고해주세요.
- 단위시간당 운반량 : 1시간에 운반가능한 최대 무게(KG)로 작성해주시면 됩니다.
- 제조자명, 주소, 연락처
※ 제조번호와 제조연월은 변경되는 사항이므로 작성하지 않으셔도 됩니다.

2. 외형도면
- 외형도면을 제품 설명서에 포함하는 이유는 자율안전확인신고는 현장심사 없이 서면심사로만 진행되기 때문에 실제 신고하는 자율안전확인신고 대상품의 크기와 모양이 어떻게 생겼는지 확인할수 없기 때문에 제품 설명서에 작성된 도면으로 확인합니다.
상세한 조립도는 필요없고, 아래 이미지와 같이 실제 제작된 대상품을 확인할 수 있는 수준의 도면이면 됩니다.

※ 컨베이어 도면이 없는 경우 3D 이미지 또는 현장에서 촬영한 제품 사진으로도 대체가 가능합니다.
3. 제원 및 주요 구조부 재질
제품설명서 작성을 위해서는 신고하는 자율안전확인신고 대상품의 사양 및 제원이 포함되어야 합니다.
외형 크기는 얼마인지, 구동모터의 용량은 얼마인지, 재질은 무엇인지? 등등
일반적으로 도면에 표시되어 있다면, 컨설팅 업체에서 도면을 참고하여 직접 작성하긴 하지만, 도면에 상세하게 표시되어 있지 않다면 아래 항목을 추가로 작성해 주셔야 합니다.
대상품 마다 필요한 사양 및 제원이 다르지만 컨베이어를 기준으로 설명드리겠습니다.
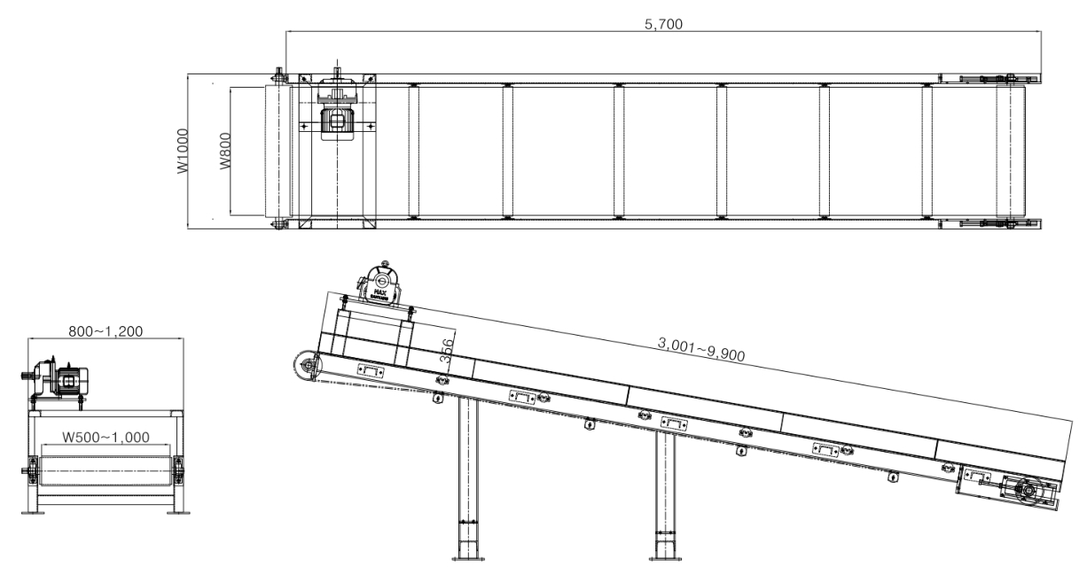
컨베이어 제원
| 폭(W) | 폭(W) 범위 | 길이(L) | 길이(L) 범위 | 모터용량(kW) |
| 650 | 500 ~ 1,000 | 5,700 | 3,001 ~ 9,900 | 2.2kW |
※ 컨베이어의 경우 최초 자율안전확인신고 시 폭(W) 범위와 길이(L) 범위를 정하여 신고하는 경우 해당 범위 내에서는 컨베이어가 변경되어도, 다시 신고하지 않고 최초 받은 신고 증명서로 계속해서 사용이 가능합니다. 따라서 최초에 자율안전확인신고를 실시할때 컨베이어의 사용목적 등을 고려하여 폭과 길이에 범위를 정하여 신고하여 하여야 합니다.
컨베이어 사양
| 부품의 명칭 | 재질 | 규격 | 비고 |
| 벨트 | Rubber, PUR | W650 | W 500 ~ 1,000 |
| 프레임 | SS275, STEEL | W 800 × L 5,700 | W 800 ~ 1,200 × L 3,001 ~ 9,900 |
| 풀리 | SS275, STEEL | Φ 100 | Φ 50 ~ 150 |
| 아이들러 | SS275 | Φ 50 | Φ 30 ~ 100 |
| 구동모터 | PUR | 2.2 kW | 220/380V |
| 자율안전확인신고 컨설팅 준비서류 최종 정리 |
최종 정리하겠습니다.
자율안전확인신고 컨설팅 의뢰시 컨베이어를 기준으로 아래 서류만 준비해주시면 됩니다.
1. 자율안전확인신고서 (서명 또는 인) 2개소에 도장날인 후 스캔하여 회신
2. 사업자등록증 사본
3. 법인등기부등본 사본(법인 사업자만 해당)
4. 외형도면 또는 3D 이미지
5. 자율안전확인표시 및 사양서(아래 양식 다운로드 받아서 작성)
※ 작성여부를 확인할 수 있도록 반드시 적색으로 되어 있는 글씨 색상은 작성 후 다른색상으로 변경 부탁드립니다.
자율안전확인신고 컨설팅을 진행하는 경우 위에서 설명드린 5가지 서류만 준비해주시면, 현장점검부터 안전보건공단에 직접 제출하고, 신고 증명서 발급 이후 자율안전확인표시(KCs)명판 제공 및 사후관리(자율안전기준을 충족함을 증명하는 서류 제공)까지 모든 과정을 책임지고 있습니다.
공인시험기관에서 직접 실시하는 자율안전확인신고 컨설팅 진행방법과 준비서류에 대해 알아봤습니다!

- 본 블로그에 게시된 내용은 해당 블로거의 경험(지식)을 바탕으로 작성된 내용이며 관계법령 등 공개된 내용 이외에 블로그에 포함된 정보의 전부 또는 일부를 상업적으로 활용하거나 무단으로 제3자에게 공개·배포·복사 또는 사용하는 것은 저작권법에 위반될 수 있습니다. -
'안전관리 > 자율안전확인신고' 카테고리의 다른 글
| 자율안전확인신고 형식번호 이해하기 (3) | 2024.10.29 |
|---|---|
| 자율안전확인신고 제어반(판넬) 제작방법 및 주의사항(feat.컨베이어) (6) | 2024.10.21 |
| 자율안전확인신고 전기안전시험에 대해 알아보자!(IEC-60204-1) (1) | 2024.02.14 |
| 컨베이어 자율안전확인신고 이해하기(feat. 형식, 시스템) (6) | 2024.02.07 |
| 컨베이어 자율안전확인신고 방법 안내(feat. 면제조건) (3) | 2024.02.06 |